Koningin Emmakade 198a

Filosofie van de woning
Hoe komt het dat vrijheid en geborgenheid elkaar kunnen versterken? Waar Aristophanes zijn vogels liet bouwen tussen aarde en hemel, creëren wij woningen die een veilige haven bieden in de stad. Aan de Koningin Emmakade leggen wij de eerste steen voor een nieuw thuis, waar het verleden wordt geëerd en de toekomst wordt vormgegeven. Elk detail van licht, ruimte en materiaal is zorgvuldig geselecteerd om een warme, leefbare plek te creëren.
“En vluchten vogels zag ik over gaan tussen de nevelen, in de nieuwe dag; zich reppende met roep en vleugelslag naar waar, in cirkeling, het theater lag..”
Achter de monumentale gevel aan de Koningin Emmakade ligt een zorgvuldig gerenoveerd pand met vier luxe appartementen. Ieder appartement is uniek in sfeer en design, met veel aandacht voor licht, ruimte en karakter. De renovatie combineert historische details met moderne luxe en duurzame installaties, waardoor deze woningen klaar zijn voor de toekomst zonder het erfgoed te verliezen. Wonen hier is meer dan een adres; het is een ervaring. De hoge plafonds, royale raampartijen en speelse erkers laten daglicht vrij binnenstromen en creëren een warme, uitnodigende sfeer. Elk detail is zorgvuldig uitgewerkt, zodat comfort, stijl en elegantie samenkomen. Hier wordt wonen een harmonieuze combinatie van historie, luxe en modern gemak.
Point of Interest
- Park Sorghvliet
- Zaal 3 Theater aan het Constant Rebecqueplein
- Palato
- Winkelstraat Frederik Hendriklaan
- Omniversum en Museon.
Lorem ipsum dolor sit amet, consectetur adipiscing elit, sed do eiusmod tempor incididunt ut labore et dolore magna aliqua. Ut enim ad minim veniam, quis nostrud exercitation ullamco laboris nisi ut aliquip ex ea commodo consequat. Duis aute irure dolor in reprehenderit in voluptate velit esse cillum dolore eu fugiat nulla pariatur. Excepteur sint occaecat cupidatat non proident, sunt in culpa qui officia deserunt mollit anim id est laborum.

Story of the House
Koningin Emmakade 198 – IN DUURZAME RENOVATIE
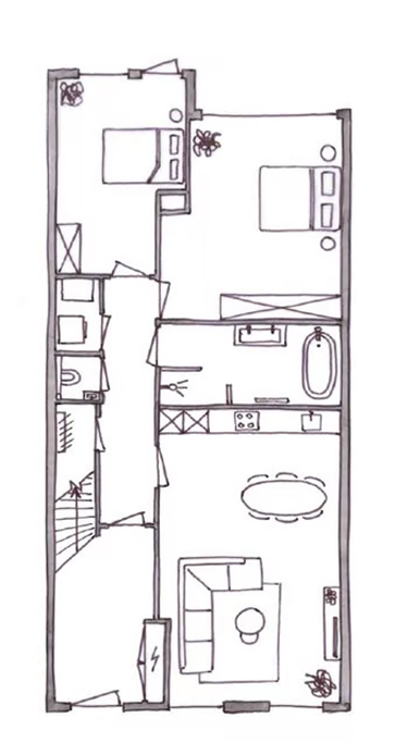
Een exclusieve parterre met een royale living aan de voorzijde, twee riante slaapkamers aan de achterzijde, een luxe badkamer voorzien van een vrijstaand bad en inloop douche en tenslotte een heerlijke tuin op het zuidwesten!
Met 10 minuten in het centrum, 10 minuten op het strand van Scheveningen en binnen minder dan 10 minuten bij de uitvalswegen, maakt dit appartement enorm centraal gelegen, in het rijk architectonische Duinoord.
Achter deze architecturale schoonheid van een voorgevel, verschuilen zich 4 luxe appartementen.
Deze worden duurzaam gerenoveerd, zullen klaar zijn voor de toekomst en met behoudt van alle schoonheden ook van een smaakvol interieur design worden voorzien.
In ieder appartement is een andere verrassende sfeer te vinden, met gedurfd kleurgebruik doch in toegankelijke tinten, waarin plaats is voor een warme haven voor de toekomstige bewoners.
Entree vanuit de algemene hal. Bij binnenkomst in het appartement is hoogstwaarschijnlijk de ruimtelijkheid de eerste indruk die u krijgt, dit door de uitzonderlijk hoge plafonds van ca. 3.40 m.
Aan de voorzijde de living welke met zijn immens hoge raampartijen voor een optimale daglichttoetreding zorgt.
De open keuken en woonkamer vloeien in elkaar over, de raampartij is voorzien van HR++ glas, waardoor er geen warmte verloren gaat en er geen sprake is van geluidsoverlast.
De luxe keuken is voorzien van alle desgewenste inbouwapparatuur, een Quooker heetwaterkraan en een composieten werkblad.
De vloer is een lamelparket welke van de woonkamer drempelloos doorloopt tot en met de slaapkamers. Onder de vloeren werken wij met fermacell platen, welke bijdraagt in de geluidsdemping tussen de verdiepingen. Aan de achterzijde de Master bedroom, van ca. 20 m².
Naastgelegen slaapkamer nummer twee, welke toegang biedt tot de achtergelegen zonnige tuin van ca. 42 m² op het zuidwesten, via de Hollanderstraat is er toegang om bij de achterom te komen, zo is de tuin ook toegankelijk met de fiets.
Tussen de woon- en slaapkamers in, is de luxe badkamer gelegen.
Welke voorzien is van een prachtig tegel design, een vrijstaand klassiek gietijzeren bad, een inloop (regen)douche, een badmeubel met een marmeren blad, twee spiegels en elektrische vloerverwarming.
Tenslotte is er vanuit de gang nog een separaat toilet met klassiek fontein. Daarnaast de toegang tot de kelder. De kelder biedt met een goede stahoogte van ca. 1.95m, ruim 15 m² aan extra opslagruimte in de woning, tevens bevindt zich hier de technische ruimte.
De gehele renovatie staat in het teken van duurzaamheid en energiezuinigheid, zo isoleren wij ook de schil van het pand en wordt er een zuinige HR ketel geplaatst in combinatie met een warmtepomp.
Niet alleen esthetisch maar ook bouwkundig is er sprake van een grondige renovatie, zodat wij ons doel om de ‘’woning klaar te maken voor de toekomst’’, behalen.
De schoonheid, luxe en sfeer van het appartement, vormen een harmonieuze combinatie.
Achter de karakteristieke, vroeg 20e -eeuwse voorgevel gaat een duurzaam geïsoleerde, energiezuinige woning verborgen waar het u aan niets zal ontbreken.
• Energielabel A+ (+) conform energiemaatwerkrapport
• Renovatie onder begeleiding van een bouwkundige
• Indeling en inrichting conform interieur design
• Algehele vernieuwing van alle technische installaties
• Alle verdiepingen voorzien van geluidsisolerende maatregelen
• Houten vloeren
• Originele elementen
• Luxe keuken voorzien inbouwapparatuur
• Garantietermijn van 12 maanden van algehele renovatie
De woning wordt opgeleverd met de Cattenburg Standaard
” een woning die klaar is voor de toekomst”
Kenmerken


Geschiedenis
Het Regentessekwartier is gebouwd in de Veenpolder evenals het Zeeheldenkwartier, bekend onder de naam ’t Kleine Veentje. De Laan van Meerdervoort vormt globaal de scheiding tussen het veen en de zandgronden. De Beeklaan, genoemd naar de Haagse Beek, vormde de grens tussen ’t Kleine Veentje en de Mientpolder.
De formele uitleg van het stratenplan van het oudste deel van het Regentessekwartier, Koningsplein e.o., was in feite nog een voortzetting van de stadsuitbreiding van het Zeeheldenkwartier, die in het midden van de jaren tachtig van de 19e eeuw de Waldeck Pyrmontkade genaderd was. In het deel tussen de Koningin Emmakade en het Verversingskanaal zijn de straatnamen ontleend aan officieren die van 1830 tot 1839 de Belgische Opstand bevochten. Dit deel van de wijk stond oorspronkelijk bekend als het Veldherenkwartier. Deze naam wordt informeel nog steeds gebruikt, maar heeft geen officiële status.
In de rest van de wijk zijn het uitvinders die hun naam geleend hebben aan de straten.
Het Koningsplein is genoemd naar koning Willem III. In meer steden is eind negentiende eeuw een Koningsplein ontstaan, ook als uiting van nationaal gevoel. De bebouwing van het Haagse Koningsplein weerspiegelt uitstekend de mentaliteit van deze stad: een tikje grandeur, maar voor de rest bescheiden burgerdom.
Na zo’n zes jaar, getuige een gevelsteen in de Van Swietenstraat uit 1892, was de buurt rond het Koningsplein, tussen de Koningin Emmakade en het Verversingskanaal, nagenoeg geheel volgebouwd. In de volgende tien jaar waren de huizen opgerukt tot over de Regentesselaan en langs de gehele Weimarstraat tot aan de Beeklaan.
Rond 1910 was de hele wijk volgebouwd. Het gebied tussen het Verversingskanaal en de Marnixstraat was het laatste gebied dat bebouwd werd. In 1904 verdwenen daar de tuinderijen om plaats te maken voor de elektriciteitscentrale en de bebouwing rond de De Constant Rebecquestraat.

Architectuur
Hierboven een foto uit 1923 van de Koningin Emmakade 198, bovenop de kap is nog een sierelement uit de Neo-Renaissance te zien.
De meeste historische panden in Duinoord zijn gebouwd aan het einde van de negentiende eeuw.
Toen was in de bouwkunst de Neo-Renaissance erg in zwang.
Kenmerkend zijn de rijke versieringen, torentjes en erkers en het gebruik van natuurstenen stoepen.
In het vooroorlogse Duinoord vindt men een grote variëteit aan woningtypen; van vrijstaande villa’s aan de Groot Hertoginnelaan, grote herenhuizen rondom het Sweelinckplein, boven- en benedenwoningen met uitbouw in de achtertuin en bel-étages met souterrain.
Dit laatste is tamelijk kenmerkend voor Duinoord omdat ze vrijwel alleen op zandgrond gebouwd kunnen worden.
Koningin Emmakade word gekenmerkt in Neo-Renaissance trant uit het einde van de 19e eeuw, in stijl behorend tot de bebouwing van het Sweelinckplein.
Een aantal panden staan ook op de nationale monumentenlijst.


























